I'm going round in circles here for a wiring diagram - Geoff's website doesn't list a download any more, but the Flash emulator is noted.
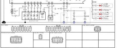
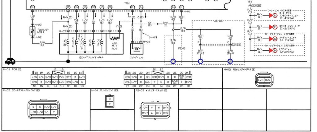
My garage needs to know pin out from the ECU for the TCC solenoid, 2002/V6, and hopefully the resistance.
I've already done £500 on having it changed 3 years ago, and would rather not go that loop without investigation.
Any help gratefully received, I don't mind buying the diagrams but time is of the essence.
Wiring
Moderators: Doone, westonwarrior
Re: Wiring
Right just responded on FB but here are the connections to the ECU itself;
the gearbox manual is still here on my website http://www.g8dhe.net/bongo_images/Gearbox/RC4AEL.pdf
Geoff
2001 Aero V6, AFT, full side conversion.
2001 Aero V6, AFT, full side conversion.




